Make a Call : +8615559090996
Get A Estimate : senko@fjsenko.com
أخط إنتاج بلوك الجدران والأرضيات مع رفوف الطوب الفولاذية هي مجموعة معدات آلية تُستخدم في إنتاج بلاط الجدران والأرضيات. تُمكّن هذه المجموعة من التشغيل المستمر لعملية الإنتاج، بما في ذلك سلسلة من الخطوات بدءًا من وضع البلاط، والنقل، والمعالجة، والتجهيز، وصولًا إلى تغليف المنتج النهائي، مما يُحسّن كفاءة الإنتاج وجودة المنتج. بفضل آلية المعالجة، لا يقتصر استخدام محرك ناقل لنقل بلاط الجدران والأرضيات على ذلك، بل يستخدم أيضًا مضخة مياه خارجية متصلة بمصدر مياه معالجة وفوهات معالجة لتجفيف البلاط. يقوم منفاخ هواء مزود بشفرات هوائية بإزالة الماء بسرعة من سطح البلاط.
خط إنتاج بلوك الجدران والأرضيات مع رفوف الطوب الفولاذية(نموذج:كيو دي زد اكس-2000)
خط إنتاج الطوب الآلي بالكامل، وخط إنتاج بلاط الجدران والأرضيات.
تخطيط المشاريع:
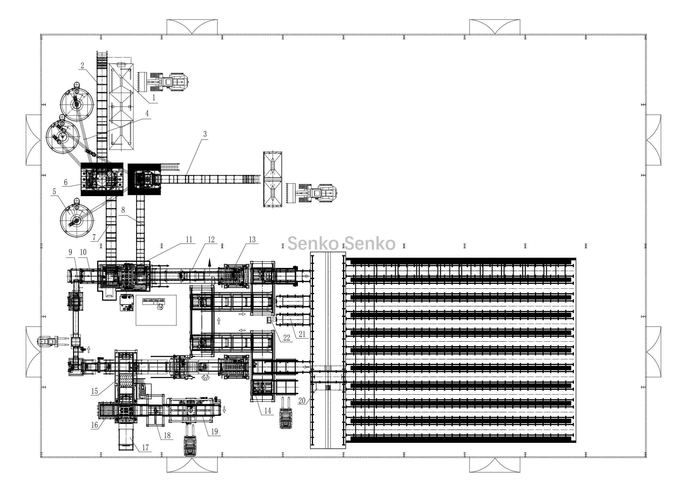
الحل الأول: فرن المعالجة له جانب فتح واحد فقط، وهو مواجه لبقية الماكينة.

| 1، آلة الدفعات | 2، ناقل المواد الأساسية | 3، ناقل المواد الأساسية | 4، ناقل حلزوني | 5، ناقل حلزوني | 6، خلاط |
| 7، ناقل المواد الأساسية | 8، ناقل المواد الأساسية | 9، وحدة تغذية المنصات الهيدروليكية | 10، وحدة تغذية المنصات | 11، آلة تشكيل الكتل | 12، ناقل كتلة |
| 13، رافعة المنصات | 14، نقل الرف | 15، مكدس الكتل | 16، تخزين صينية خشبية | 17، آلة تغليف الفيلم | 18، آلة كذب الفيلم |
| 19، آلة تجريد دوارة علوية | 20، آر جي في | 21، عربة النقل | 22، محطة الشحن |
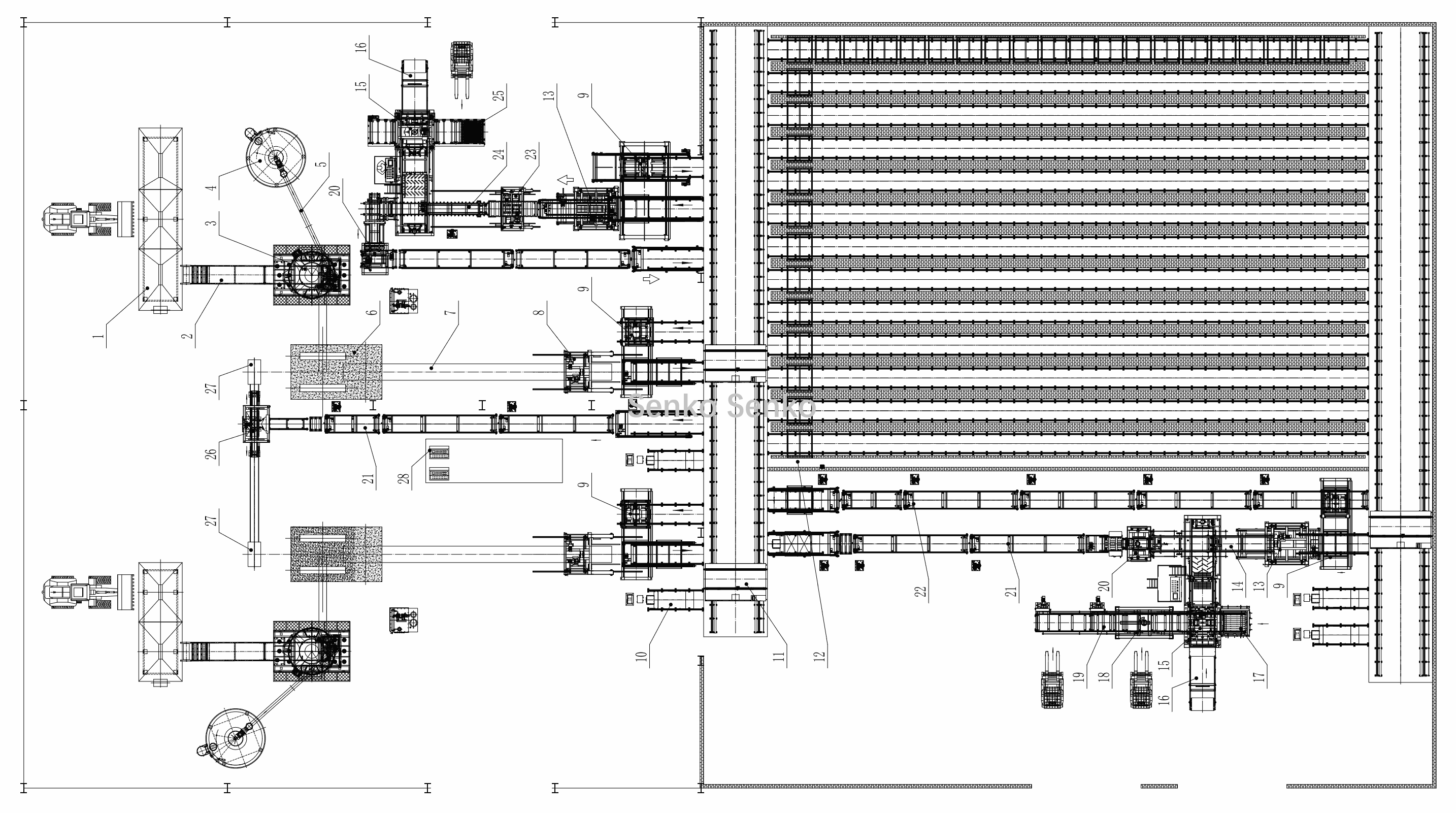
الحل الثاني:يحتوي فرن المعالجة على جانب فتح واحد فقط، وهو مواجه لبقية الماكينة.

| 1، آلة الدفعات | 2، ناقل المواد الأساسية | 3، خلاط | 4، صومعة الأسمنت | 5، ناقل الأسمنت | 6، ناقل الخليط |
| 7، آلة التشكيل | 8، ناقل المنصات | 9. تحميل المنصات في الرف | 10، نقل الرف | 11، تغذية الرف على RGV | 12، عربة نقل RGV |
| 13، فرن معالجة الكتل | 14. تفريغ المنصات من الرف | 15، الناقل قبل الرفع | 16، رافعة المنصات | 17، فاصل الكتل والمنصات | 18، آلة تكديس الكتل |
| 19، ناقل المكدس | 20، آلة تجريد التعبئة والتغليف | 21، ناقل المنصات الفارغة | 22، آلة التكديس | 23، ناقل مكدس المنصات | 24، تحميل المنصات |
الحل الثالث: فرن معالجة واحد مع مجموعتين من آلات التشكيل والتعبئة لأنواع مختلفة من المنتجات.

| 1، آلة الدفعات | 2، ناقل المواد الأساسية | 3، خلاط | 4- صومعة الأسمنت | 5، ناقل حلزوني | 6، آلة التشكيل |
| 7، ناقل منصات الطوب | 8، تغذية المنصات على الرف | 9، وحدة نقل الرف | 10، عربة النقل | 11، آر جي في | 12، فرن المعالجة |
| 13، إخراج المنصة من الرف | 14، فاصل الطوب والمنصات | 15، رافعة الطوب | 16، آلة كذب الفيلم | 17، إطار تخزين الدرج | 18، وحدة تغليف الفيلم |
| 19، آلة تجريد | 20، منصة تحميل فارغة | 21، ناقل مكدس المنصات | 22، ناقل الرفوف الفارغة | 23، رافعة منصات الطوب | 24، ناقل منصات الطوب |
| 25، آلة تجريد | 26، تغذية المنصات على الخط | 27، إطار تخزين المنصات |
مزايا المنتج:
1. تحسين كفاءة الإنتاج: تعمل عمليات الإنتاج الآلية على تقليل التدخل اليدوي وكثافة العمالة، مما يتيح الإنتاج المستمر والفعال، مما يزيد بشكل كبير من إنتاج بلاط الجدران والأرضيات؛
2. ضمان جودة المنتج: تساعد عملية تحميل البلاط ونقله ومعالجته بدقة، بالإضافة إلى بيئة المعالجة المستقرة، على ضمان مؤشرات جودة بلاط الجدران والأرضيات، مثل دقة الأبعاد والتسطيح والقوة، وتقليل معدل العيوب.
3. خفض تكاليف الإنتاج: على الرغم من أن الاستثمار في المعدات كبير، إلا أنه على المدى الطويل، يمكنه خفض تكلفة الإنتاج لكل وحدة منتج بشكل فعال من خلال تحسين كفاءة الإنتاج وتقليل تكاليف العمالة وهدر المواد الخام؛
4. تحسين سلامة الإنتاج: فهو يقلل من الاتصال المباشر بين البشر وعمليات الإنتاج الخطيرة مثل درجات الحرارة العالية والتشغيل عالي السرعة، ويقلل من حوادث مكان العمل، ويحسن سلامة عملية الإنتاج.
سيناريوهات التطبيق

العلامات :