Make a Call : +8615559090996
Get A Estimate : senko@fjsenko.com
أخط إنتاج الطوب من النفايات الصلبة هو نظام يُحوّل النفايات الصلبة إلى طوب بناء. يستخدم تقنية الاهتزاز المُعدّل بالتردد والسعة لتحقيق كثافة عالية وتوفير في الطاقة في الطوب المُعاد تدويره غير المُحترق. تُنتج آلة تصنيع طوب النفايات لدينا أنواعًا مُختلفة من الطوب المُعاد تدويره غير المُحترق، ويمكن تشكيلها وفقًا للمتطلبات.
خط إنتاج الطوب/الكتل من النفايات الصلبة (نموذج:جي اف زد اكس-2000)
خط إنتاج صناعة الطوب الآلي بالكامل، خط إنتاج صناعة الطوب من النفايات الصلبة، خط إنتاج النفايات الصلبة للبناء.
تخطيط المشاريع:
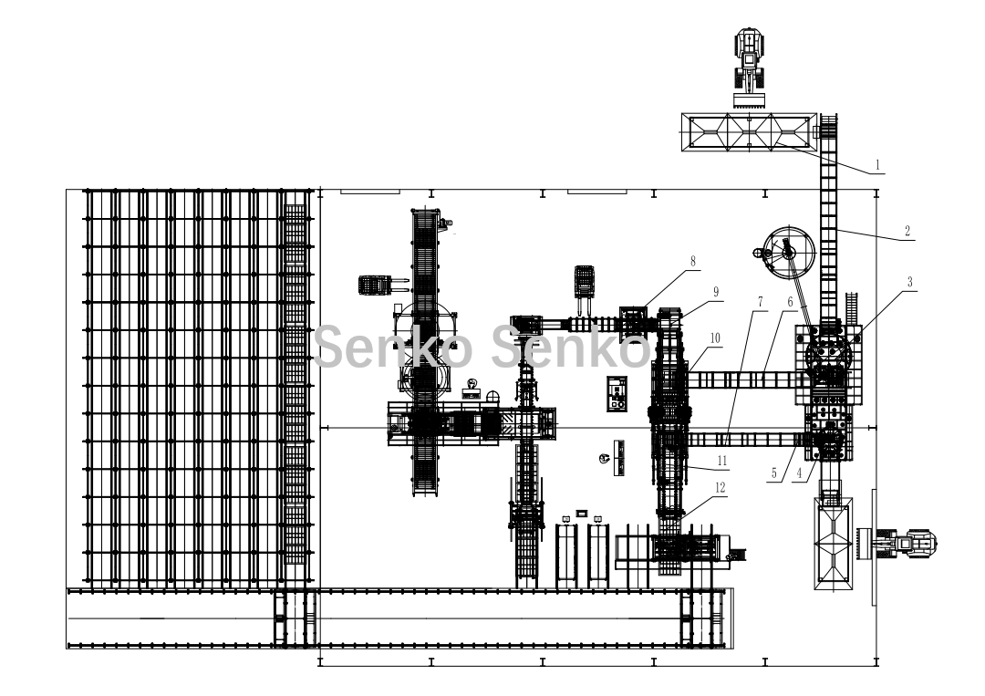
الحل الأول: تيحتوي فرن المعالجة على جانب فتح واحد، وهو موازٍ للمعدات الأخرى

| 1، آلة الدفعات | 2، ناقل المواد الخام | 3، خلاط المواد الأساسية | 4، خلاط الصبغة | 5، شاشة اهتزازية | 6، ناقل خليط القاعدة |
| 7، ناقل خليط الصبغة | 8، تحميل المنصات | 9، وحدة تغذية المنصات | 10، آلة التشكيل | 11،ناقل | 12، آلة التكديس |
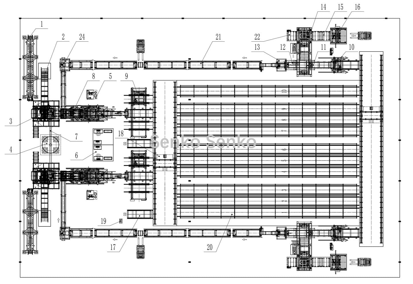
الحل الثاني: فرن المعالجة له مدخل ومخرج، مدخل فرن المعالجة يواجه باقي الأجهزة.

| 1، آلة الدفعات | 2، ناقل المواد الأساسية | 3، خلاط | 4- صومعة الأسمنت | 5، خزان الزيت |
| 6، خزانة التحكم الإلكترونية | 7، ناقل حلزوني | 8، آلة التشكيل | 9، منصة نقالة مع الطوب | 10، رافعة المنصات |
| 11، فاصل منصات الطوب | 12، ناقل المنصات الفارغة | 13، منصة نقالة بدون طوب | 14، رافعة الطوب | 15، ناقل المكدسات |
| 16، آلة تجريد دوارة سفلية | 17، عربة النقل | 18، آر جي في | 19، محطة الشحن | 20، فرن المعالجة |
| 21، نظام إعادة تدوير المنصات الفارغة | 22، رف تخزين الصواني | 24، تحميل المنصات الهيدروليكية |
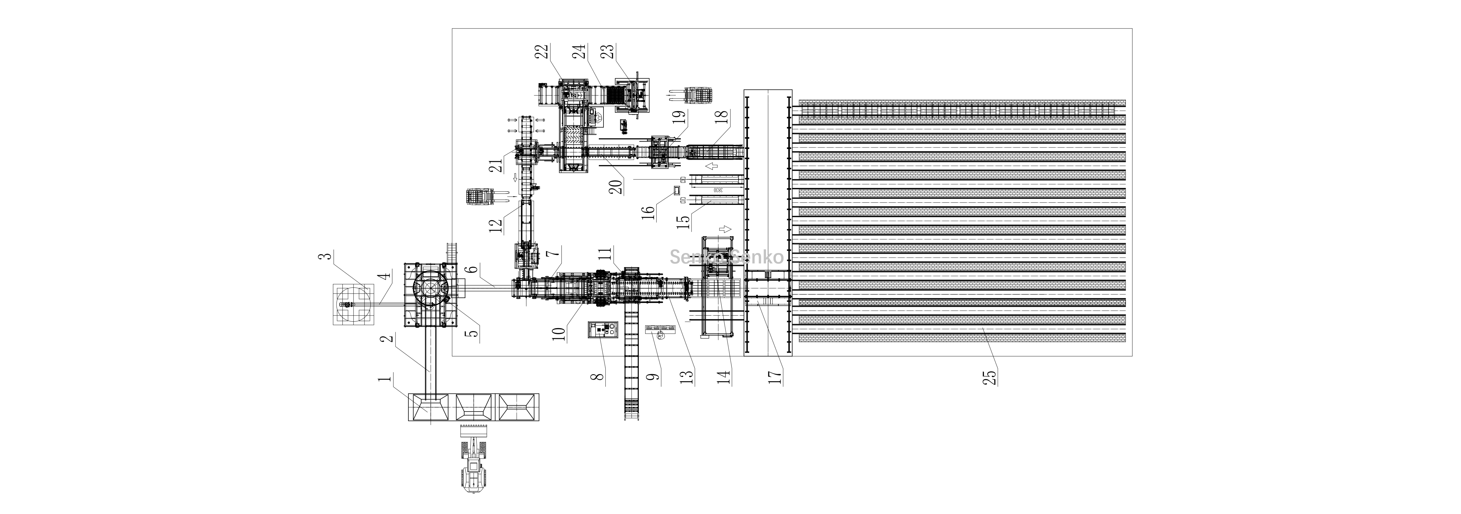
الحل الثالث:Tيحتوي فرن المعالجة على جانب مفتوح واحد، وهو مواجه لبقية الآلات.

| 1، آلة الدفعات | 2، ناقل المواد الأساسية | 3، خزان تخزين المواد الأساسية | 4، ناقل حلزوني | 5، خلاط المواد الأساسية |
| 6، ناقل خليط القاع | 7، تحميل المنصات | 8،محطة هيدروليكية | 9، نظام التحكم الإلكتروني | 10، وحدة تغذية المنصات |
| 11، آلة التشكيل | 12. إعادة تدوير المنصات | 13، نقل المنصات | 14، آلة تعبئة المنصات | 15 عربة نقل |
| 16، محطة الشحن | 17، RGV | 18، ناقل مكدس المنصات | 19، رافعة المنصات | 20، ناقل منصات الطوب |
| 21، آلة تعبئة المنصات | 22، آلة تكديس الطوب | 23، التعبئة الدوارة السفلية | 24، ناقل المكدس | 25، فرن المعالجة |
مزايا المنتج:
١. المواد الخام غير مكلفة، ومتوفرة على نطاق واسع، وتكاليف نقلها منخفضة. آلات صنع الطوب غير مكلفة نسبيًا، وتدعمها السياسات الوطنية، مما يحقق فوائد اجتماعية واقتصادية كبيرة.
2. تتميز الطوب المنتج بالقوة العالية والأداء الجيد، مما يوفر موارد الأرض بشكل فعال ويعزز التعديل الهيكلي لصناعة مواد جدران البناء.
سيناريوهات التطبيق

العلامات :